3 bedroom traditional house design - ID 13412

File Type
CAD + PDF PDF
Drawing Sets
Architectural Drawings

Unchecking Architectural Drawings will remove the basic files

proceed cancel
Instant digital delivery 100% Money Guarantee Multiple payment options Customizable house plans Construction cost estimates
VisaMastercardAmerican Express DiscoverGoogle Pay PayPal
3 bedroom traditional house design - ID 13412
File Type
CAD + PDF PDF
Drawing Sets
Architectural Drawings

Unchecking Architectural Drawings will remove the basic files

proceed cancel
Add To Wishlist
Description

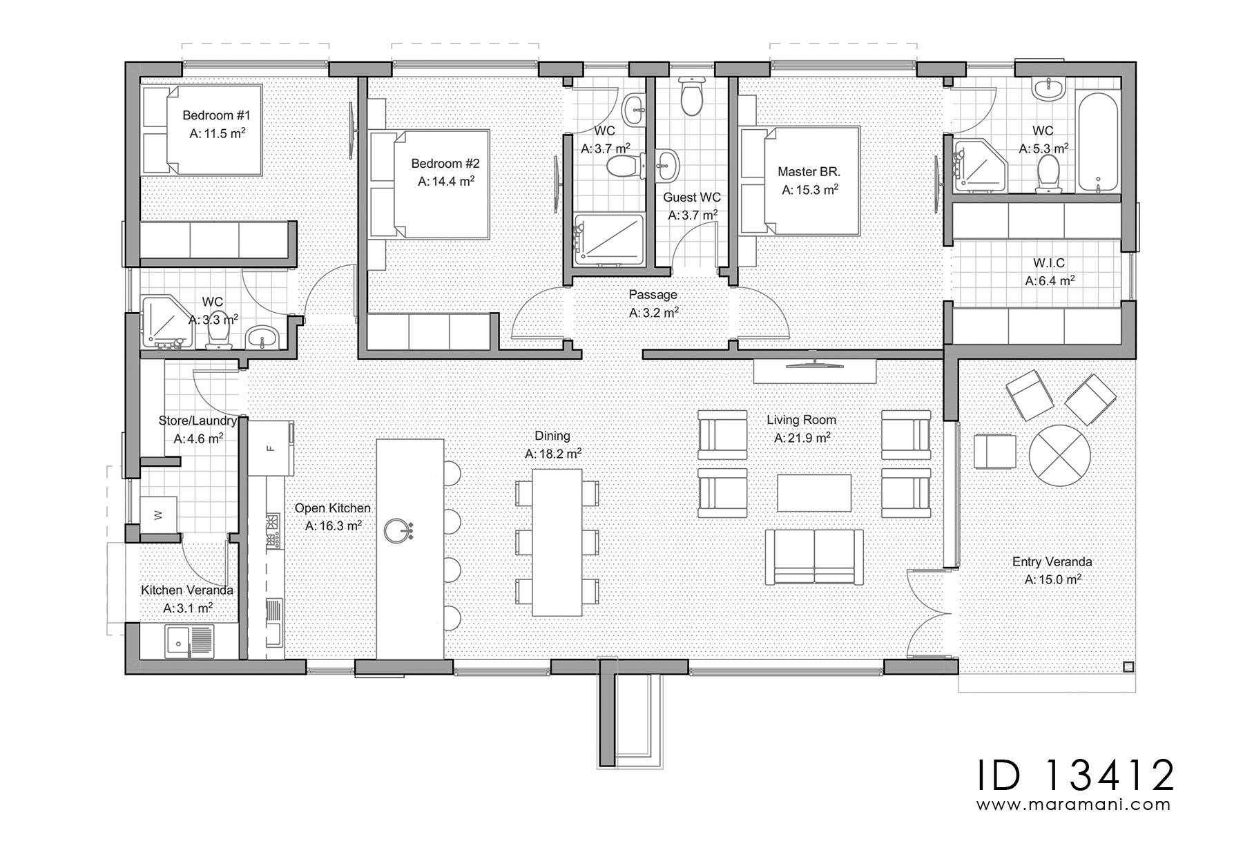
The front contains the common spaces. The back contains the bedrooms and more private facilities. This 3 bedroom home utilizes easily available materials including burnt bricks, steel casement windows, metal sheet roofs and screed floors. This not only brings down the cost of material but due to it's simplicity also brings down the cost of labour. An open plan layout connects the kitchen, dining and living area into a single space for a contemporary feel within a traditional home. View a similar plan with 3 bathrooms HERE.

Plan Details

Features Drawings List
Stories: 1
Bedroom: 3
En suite rooms: 3
Toilets: 4
Kitchen: 1
Pantry: 1
Dining room: 1
Living room: 1
Laundry: 1
Veranda: 2

Foundation Plan
Floor plan
Roof plan
Sections
Elevations
Schematic electrical layout
Door and window schedule
Furniture layout

*Drawings delivered in PDF and DWG Format

Very efficient, timely and money well spent.I loved the house plan and i received it immediately upon making payment. Thank you for your wonderful services. I recommend anyone buy from here without any reservations.

Ekong Richard

The company was responsive when I enquired about the services. The website is user friendly and easy to navigate.

Lutinala Nalomba

Comprehensive and fast response to my concern. Received the plans as detailed as promised, Bravo.

Henry Wanjala

Details were excellent, prices unbeatable Delivery was excellent.

Samuel Berko

The service is impeccable. Maramani response time is very fast. Immediately after I had made the payment I received my plans after 30 mins or less. Thanks Maramani for the excellent service.

Bose Mhizha

Drawing Sets & Rooms Included

Rooms included

  • ✔ Master Bedroom
  • ✔ Bedroom
  • ✔ WC
  • ✔ Kitchen
  • ✔ Dining Room
  • ✔ Living Room
  • ✔ Pantry
  • ✔ Laundry
  • ✔ Veranda

Architectural drawings

  • ✔ Foundation Plan
  • ✔ Floor Plan
  • ✔ Roof Plan
  • ✔ Sections
  • ✔ Elevations
  • ✔ Door Schedule
  • ✔ Schematic Electrical Layout
  • ✔ Furniture Layout Plans
  • ✔ Window Schedule
165

Construction Cost Calculator

Basic
Standard
Luxury
Item Cost Estimates
1. Substructure
2. Superstructure
3. Roof
4. Doors
5. Windows
6. Finishes
7. Decorations
8. Plumbing Installations
9. Electrical Installations
TOTAL

FAQ

Our customer support is available Monday to Friday: 8am-8:30pm.Average answer time: 24h

Customer Reviews

Be the first to write a review
0%
(0)
0%
(0)
0%
(0)
0%
(0)
0%
(0)