4 Bedroom House Plan - ID 24302

File Type
CAD + PDF PDF
Drawing Sets
Architectural Drawings Structural Drawings Bills of Quantity (BOQ)

Unchecking Architectural Drawings will remove the basic files

proceed cancel
Instant digital delivery 100% Money Guarantee Multiple payment options Customizable house plans Construction cost estimates
VisaMastercardAmerican Express DiscoverGoogle Pay PayPal
4 Bedroom House Plan - ID 24302
File Type
CAD + PDF PDF
Drawing Sets
Architectural Drawings Structural Drawings Bills of Quantity (BOQ)

Unchecking Architectural Drawings will remove the basic files

proceed cancel
Add To Wishlist
Description

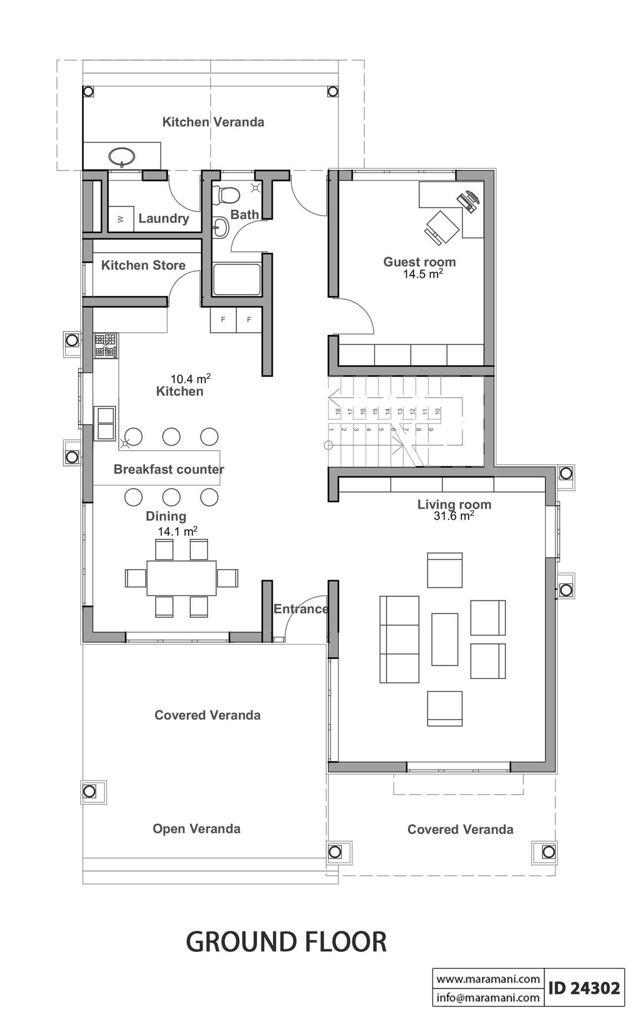
Simple Four Bedroom House Plan - ID 24302 - Spanish House Plans by Maramani. This compact 2 storey home plan carries 4 bedrooms with large windows, built in wardrobes a dining and an open living room respectively. It’s an ideal home for a family. There is always something for everyone as this plan carries many varying features such as the beautifully crafted window arches and gables functioning as ventilation for the roof.

Plan Details

Features Drawings List
Stories: 2
Bedroom: 4
Self-contained rooms: 1
Toilets: 3
Kitchen: 1
Dining room: 1
Living room: 1
Family room: 1
Balcony: 1
Verandah: 2
Laundry: 1
Store: 1

Foundation Plan
Floor Plan
Roof Plan
Sections
Elevations
Schematic electrical layout
Details
Door and Window Schedule
Photo-realistic renders
Structural Drawings (PDF and DWG)
Bills of quantities without rates in excel
*Drawings delivered in PDF and DWG Format

Very efficient, timely and money well spent.I loved the house plan and i received it immediately upon making payment. Thank you for your wonderful services. I recommend anyone buy from here without any reservations.

Ekong Richard

The company was responsive when I enquired about the services. The website is user friendly and easy to navigate.

Lutinala Nalomba

Comprehensive and fast response to my concern. Received the plans as detailed as promised, Bravo.

Henry Wanjala

Details were excellent, prices unbeatable Delivery was excellent.

Samuel Berko

The service is impeccable. Maramani response time is very fast. Immediately after I had made the payment I received my plans after 30 mins or less. Thanks Maramani for the excellent service.

Bose Mhizha

Drawing Sets & Rooms Included

Rooms included

  • ✔ Master Bedroom
  • ✔ Bedroom
  • ✔ WC
  • ✔ Kitchen
  • ✔ Dining Room
  • ✔ Living Room
  • ✔ Family Room
  • ✔ Balcony
  • ✔ Veranda
  • ✔ Laundry
  • ✔ Indoor Store Room

Architectural drawings

  • ✔ Foundation Plan
  • ✔ Floor Plan
  • ✔ Roof Plan
  • ✔ Sections
  • ✔ Elevations
  • ✔ Schematic Electrical Layout
  • ✔ Door Schedule
  • ✔ Window Schedule

Structural drawings

  • ✔ Roof Details
  • ✔ Beams Details
  • ✔ Column Details
  • ✔ Slab Reinforcement
  • ✔ Concrete Mixes & Details
  • ✔ Foundations Layout
  • ✔ Foundation Details
  • ✔ Staircase Details

Bills of Quantity

  • ✔ Bills of Quantity (BOQ)
312

Construction Cost Calculator

Basic
Standard
Luxury
Item Cost Estimates
1. Substructure
2. Superstructure
3. Roof
4. Doors
5. Windows
6. Finishes
7. Decorations
8. Plumbing Installations
9. Electrical Installations
TOTAL

FAQ

Our customer support is available Monday to Friday: 8am-8:30pm.Average answer time: 24h

Customer Reviews

Be the first to write a review
0%
(0)
0%
(0)
0%
(0)
0%
(0)
0%
(0)