Large 3 bedroom house with garage - ID 13410

File Type
CAD + PDF PDF
Drawing Sets
Architectural Drawings

Unchecking Architectural Drawings will remove the basic files

proceed cancel
Instant digital delivery 100% Money Guarantee Multiple payment options Customizable house plans Construction cost estimates
VisaMastercardAmerican Express DiscoverGoogle Pay PayPal
Large 3 bedroom house with garage - ID 13410
File Type
CAD + PDF PDF
Drawing Sets
Architectural Drawings

Unchecking Architectural Drawings will remove the basic files

proceed cancel
Add To Wishlist
Description

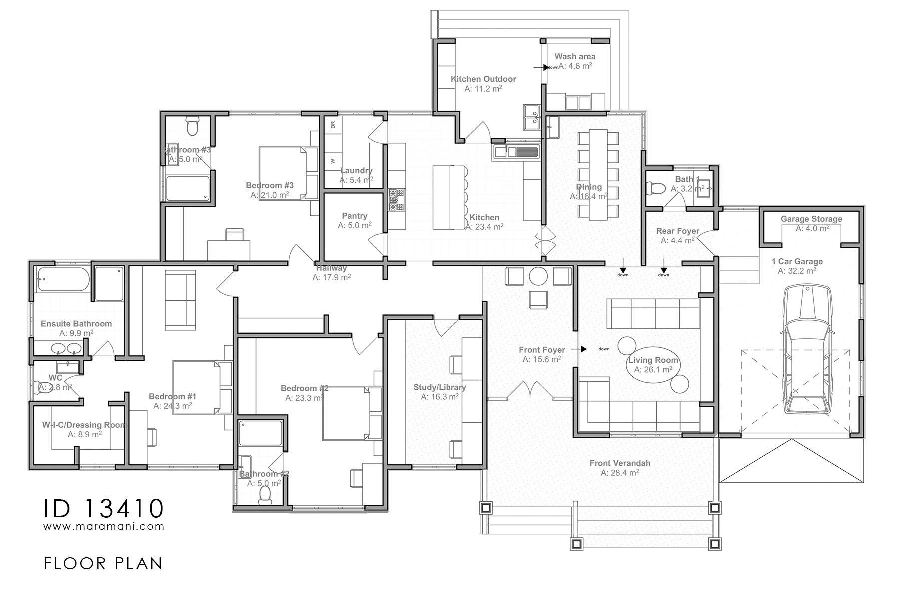
3 en-suite bedrooms and a large single car garage are the defining features of this town house. The kitchen contains a kitchen island where most meals can be held. Next to it lies the formal dining room containing a classy corner window. The house also contains a study/ library and an outdoor kitchen. If you like lots of space then this is the perfect plan for you!

Plan Details

Features Drawings List

Stories: 1
Bedroom: 3
En suite rooms: 3
Toilets: 4
Kitchen: 2
Pantry: 1
Dining room: 1
Living room: 1
Laundry/power room: 1
Outside wash area: 1
Veranda: 2
Studio/library: 1
Garage: 1
Garage store: 1

Foundation Plan
Floor plan
Roof plan
Sections
Elevations
Schematic electrical layout
Door and window schedule
Furniture layout
Details
Entrance gate and perimeter wall
Septic tank and soak pit

*Drawings delivered in PDF and DWG Format

Very efficient, timely and money well spent.I loved the house plan and i received it immediately upon making payment. Thank you for your wonderful services. I recommend anyone buy from here without any reservations.

Ekong Richard

The company was responsive when I enquired about the services. The website is user friendly and easy to navigate.

Lutinala Nalomba

Comprehensive and fast response to my concern. Received the plans as detailed as promised, Bravo.

Henry Wanjala

Details were excellent, prices unbeatable Delivery was excellent.

Samuel Berko

The service is impeccable. Maramani response time is very fast. Immediately after I had made the payment I received my plans after 30 mins or less. Thanks Maramani for the excellent service.

Bose Mhizha

Drawing Sets & Rooms Included

Rooms included

  • ✔ Master Bedroom
  • ✔ Bedroom
  • ✔ WC
  • ✔ Kitchen
  • ✔ Pantry
  • ✔ Dining Room
  • ✔ Living Room
  • ✔ Laundry
  • ✔ Veranda
  • ✔ Office/Library
  • ✔ Garage/Parking
  • ✔ Indoor Store Room

Architectural drawings

  • ✔ Foundation Plan
  • ✔ Floor Plan
  • ✔ Roof Plan
  • ✔ Sections
  • ✔ Elevations
  • ✔ Details
  • ✔ Furniture Layout Plans
  • ✔ Door Schedule
  • ✔ Window Schedule
  • ✔ Schematic Electrical Layout
  • ✔ Gate Design
  • ✔ Perimeter Wall
  • ✔ Septic Tank & Soak Away Pit
318

Construction Cost Calculator

Basic
Standard
Luxury
Item Cost Estimates
1. Substructure
2. Superstructure
3. Roof
4. Doors
5. Windows
6. Finishes
7. Decorations
8. Plumbing Installations
9. Electrical Installations
TOTAL

FAQ

Our customer support is available Monday to Friday: 8am-8:30pm.Average answer time: 24h

Customer Reviews

Be the first to write a review
0%
(0)
0%
(0)
0%
(0)
0%
(0)
0%
(0)