4 Bedroom House Plan - ID 24410

File Type
CAD + PDF PDF
Drawing Sets
Architectural Drawings Structural Drawings

Unchecking Architectural Drawings will remove the basic files

proceed cancel
Instant digital delivery 100% Money Guarantee Multiple payment options Customizable house plans Construction cost estimates
VisaMastercardAmerican Express DiscoverGoogle Pay PayPal
4 Bedroom House Plan - ID 24410
File Type
CAD + PDF PDF
Drawing Sets
Architectural Drawings Structural Drawings

Unchecking Architectural Drawings will remove the basic files

proceed cancel
Add To Wishlist
Description

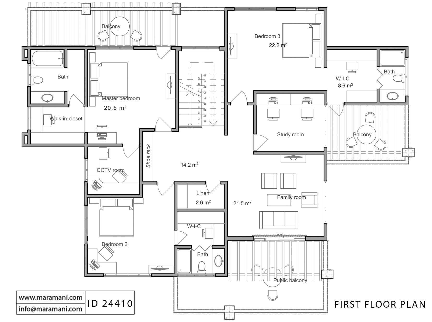
Master bedroom with 3 additional bedrooms which includes a guest room. A large open plan living room connecting to the dining and kitchen. 1 port car garage, family room, study, office, linen, CCTV room, laundry and lots of storage space.  2 verandas and 3 balconies. This 2 Story House Plan with Master Bedroom Upstairs comes with all these amenities within a total area of only 480 m2 making it one of the most economic plans to construct in terms of usable space. See a similar 5 bedroom plan HERE

Plan Details

Features Drawings List
Stories: 2
Bedroom: 4
Self-contained rooms: 3
Toilets: 4
Kitchen: 1
Dining room: 1
Living room: 1
Family room: 1
Balcony: 3
Veranda: 2
Study: 1
CCTV room: 1
Linen/closet: 1
Laundry: 1
Store: 2

Foundation plan
Floor plans
Roof plan
Elevations
Sections
Roof details
Floor finishes plan
Door and window schedule
Schematic electrical layout
Clean and wastewater
Entrance gate and perimeter wall
Furniture layout
Structural Drawings

*Drawings delivered in PDF and DWG Format

Very efficient, timely and money well spent.I loved the house plan and i received it immediately upon making payment. Thank you for your wonderful services. I recommend anyone buy from here without any reservations.

Ekong Richard

The company was responsive when I enquired about the services. The website is user friendly and easy to navigate.

Lutinala Nalomba

Comprehensive and fast response to my concern. Received the plans as detailed as promised, Bravo.

Henry Wanjala

Details were excellent, prices unbeatable Delivery was excellent.

Samuel Berko

The service is impeccable. Maramani response time is very fast. Immediately after I had made the payment I received my plans after 30 mins or less. Thanks Maramani for the excellent service.

Bose Mhizha

Drawing Sets & Rooms Included

Rooms included

  • ✔ Master Bedroom
  • ✔ Bedroom
  • ✔ WC
  • ✔ Kitchen
  • ✔ Dining Room
  • ✔ Living Room
  • ✔ Family Room
  • ✔ Balcony
  • ✔ Veranda
  • ✔ Linen Store
  • ✔ Laundry
  • ✔ Indoor Store Room
  • ✔ Office/Library
  • ✔ Security Room

Architectural drawings

  • ✔ Foundation Plan
  • ✔ Floor Plan
  • ✔ Roof Plan
  • ✔ Sections
  • ✔ Elevations
  • ✔ Floor Finishes
  • ✔ Door Schedule
  • ✔ Furniture Layout Plans
  • ✔ Schematic Electrical Layout
  • ✔ Window Schedule
  • ✔ Schematic Clean Water Layout
  • ✔ Schematic Waste Water Layout
  • ✔ Perimeter Wall
  • ✔ Gate Design
  • ✔ Details

Structural drawings

  • ✔ Foundations Layout
  • ✔ Foundation Details
  • ✔ Column Details
  • ✔ Staircase Details
  • ✔ Slab Panels
  • ✔ Slab Reinforcement
  • ✔ Beams Details
  • ✔ Roof Details
480

Construction Cost Calculator

Basic
Standard
Luxury
Item Cost Estimates
1. Substructure
2. Superstructure
3. Roof
4. Doors
5. Windows
6. Finishes
7. Decorations
8. Plumbing Installations
9. Electrical Installations
TOTAL

FAQ

Our customer support is available Monday to Friday: 8am-8:30pm.Average answer time: 24h

Customer Reviews

Be the first to write a review
0%
(0)
0%
(0)
0%
(0)
0%
(0)
0%
(0)