3 Bedroom House Plan - ID 13501

File Type
CAD + PDF PDF
Drawing Sets
Architectural Drawings

Unchecking Architectural Drawings will remove the basic files

proceed cancel
Instant digital delivery 100% Money Guarantee Multiple payment options Customizable house plans Construction cost estimates
VisaMastercardAmerican Express DiscoverGoogle Pay PayPal
3 Bedroom House Plan - ID 13501
File Type
CAD + PDF PDF
Drawing Sets
Architectural Drawings

Unchecking Architectural Drawings will remove the basic files

proceed cancel
Add To Wishlist
Description

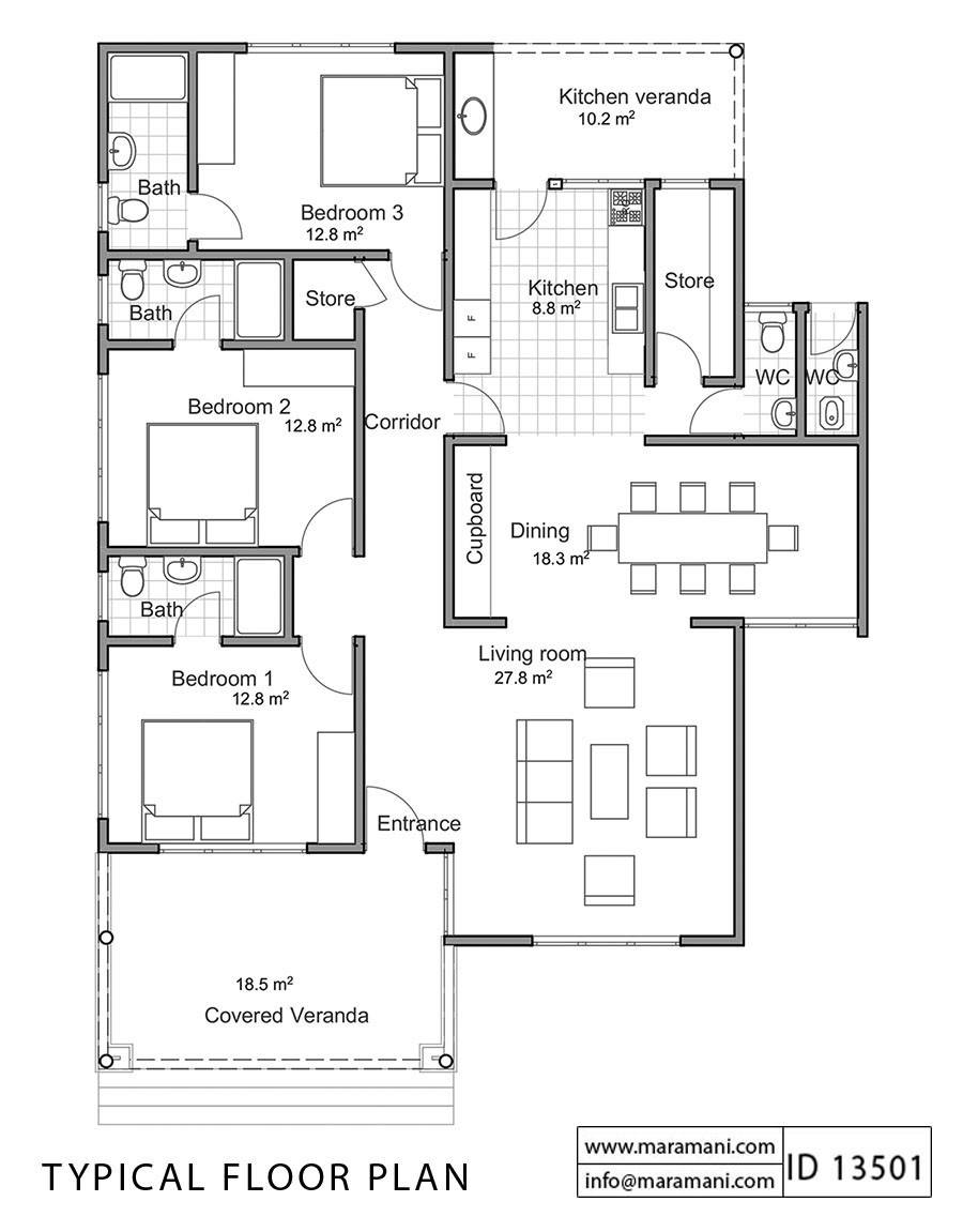
A single-story duplex design with 3 self-contained bedrooms. It can be used by sharing tenants or extended family members. All features that make up a great living experience are included in this very affordable design. The plans for both units are included in the full drawing set.
This beautiful traditional three bedrooms duplex is a popular African home featuring an open living area and spacious bedrooms.
This 1-story duplex house plan has 3 bedrooms and 5 bathrooms on each unit. The great room is at the front of each unit and receives lots of natural light. A large storage facility in the kitchen completes the public areas.
This duplex house plan is easy to build. The simple roof lines provide each unit an individual look and include small covered porches.
This design is also a perfect duplex plan for narrow lots.

Plan Details

Features Drawings List
Stories: 1
Bedroom: 3
Self-contained rooms: 3
Toilets: 5
Kitchen: 1
Dining room: 1
Living room: 1
Verandah: 2
Laundry: 1, Store: 2

Foundation plans
Floor plans
Roof Plans
Sections
Elevations
Door and window schedules
*Drawings delivered in PDF and DWG Format

Very efficient, timely and money well spent.I loved the house plan and i received it immediately upon making payment. Thank you for your wonderful services. I recommend anyone buy from here without any reservations.

Ekong Richard

The company was responsive when I enquired about the services. The website is user friendly and easy to navigate.

Lutinala Nalomba

Comprehensive and fast response to my concern. Received the plans as detailed as promised, Bravo.

Henry Wanjala

Details were excellent, prices unbeatable Delivery was excellent.

Samuel Berko

The service is impeccable. Maramani response time is very fast. Immediately after I had made the payment I received my plans after 30 mins or less. Thanks Maramani for the excellent service.

Bose Mhizha

Drawing Sets & Rooms Included

Rooms included

  • ✔ Master Bedroom
  • ✔ Bedroom
  • ✔ WC
  • ✔ Kitchen
  • ✔ Dining Room
  • ✔ Living Room
  • ✔ Veranda
  • ✔ Laundry
  • ✔ Indoor Store Room

Architectural drawings

  • ✔ Foundation Plan
  • ✔ Floor Plan
  • ✔ Roof Plan
  • ✔ Sections
  • ✔ Elevations
  • ✔ Door Schedule
  • ✔ Window Schedule
170

Construction Cost Calculator

Basic
Standard
Luxury
Item Cost Estimates
1. Substructure
2. Superstructure
3. Roof
4. Doors
5. Windows
6. Finishes
7. Decorations
8. Plumbing Installations
9. Electrical Installations
TOTAL

FAQ

Our customer support is available Monday to Friday: 8am-8:30pm.Average answer time: 24h

Customer Reviews

Be the first to write a review
0%
(0)
0%
(0)
0%
(0)
0%
(0)
0%
(0)