Australian influenced design - ID 14306

File Type
CAD + PDF PDF
Drawing Sets
Architectural Drawings

Unchecking Architectural Drawings will remove the basic files

proceed cancel
Instant digital delivery 100% Money Guarantee Multiple payment options Customizable house plans Construction cost estimates
VisaMastercardAmerican Express DiscoverGoogle Pay PayPal
Australian influenced design - ID 14306
File Type
CAD + PDF PDF
Drawing Sets
Architectural Drawings

Unchecking Architectural Drawings will remove the basic files

proceed cancel
Add To Wishlist
Description

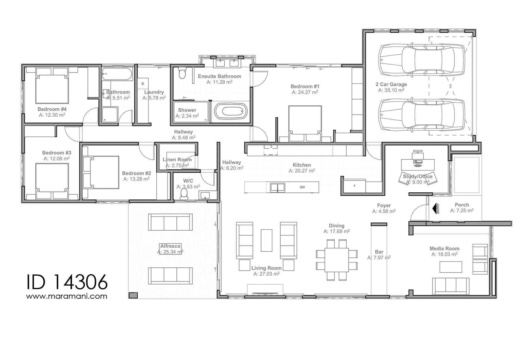
Introducing a sleek design, designed to transport you into another world. Walking through your front door you find yourself with many options including a media room, study room, kitchen living room and dining all directly in front of you. With ample space, along with an additional activity area, there is plenty of room for a full house. The master suite truly features a stand out of the home. With such an incredible walk-in robe, you will be nothing short of inspired to fill this 4 bedroom house plan. The resort styled en-suite boasts all the features and fixtures you could ask for.

Plan Details

Features Drawings List
Stories: 1
Bedroom: 4
Self-contained rooms: 1
Toilets: 3
Kitchen: 1
Dining room: 1
Living room: 1
Media room: 1
Laundry: 1
Office/ study: 1
Verandah: 2
Store: 1
Garage: 2 cars

Foundation Plan
Floor plan
Roof plan
Sections
Elevations
Schematic electrical layout
Door and window schedule
Furniture layout plan
Details
Septic tank and soak pit details
*Drawings delivered in PDF and DWG Format

Very efficient, timely and money well spent.I loved the house plan and i received it immediately upon making payment. Thank you for your wonderful services. I recommend anyone buy from here without any reservations.

Ekong Richard

The company was responsive when I enquired about the services. The website is user friendly and easy to navigate.

Lutinala Nalomba

Comprehensive and fast response to my concern. Received the plans as detailed as promised, Bravo.

Henry Wanjala

Details were excellent, prices unbeatable Delivery was excellent.

Samuel Berko

The service is impeccable. Maramani response time is very fast. Immediately after I had made the payment I received my plans after 30 mins or less. Thanks Maramani for the excellent service.

Bose Mhizha

Drawing Sets & Rooms Included

Rooms included

  • ✔ Master Bedroom
  • ✔ Bedroom
  • ✔ WC
  • ✔ Kitchen
  • ✔ Dining Room
  • ✔ Living Room
  • ✔ TV Room/Cinema/Theater
  • ✔ Laundry
  • ✔ Office/Library
  • ✔ Veranda
  • ✔ Indoor Store Room
  • ✔ Garage/Parking

Architectural drawings

  • ✔ Foundation Plan
  • ✔ Floor Plan
  • ✔ Roof Plan
  • ✔ Sections
  • ✔ Elevations
  • ✔ Details
  • ✔ Door Schedule
  • ✔ Window Schedule
  • ✔ Schematic Electrical Layout
  • ✔ Furniture Layout Plans
  • ✔ Septic Tank & Soak Away Pit
304

Construction Cost Calculator

Basic
Standard
Luxury
Item Cost Estimates
1. Substructure
2. Superstructure
3. Roof
4. Doors
5. Windows
6. Finishes
7. Decorations
8. Plumbing Installations
9. Electrical Installations
TOTAL

FAQ

Our customer support is available Monday to Friday: 8am-8:30pm.Average answer time: 24h

Customer Reviews

Be the first to write a review
0%
(0)
0%
(0)
0%
(0)
0%
(0)
0%
(0)