4 Bedroom House Plan - ID 24604

File Type
CAD + PDF PDF
Drawing Sets
Architectural Drawings Structural Drawings

Unchecking Architectural Drawings will remove the basic files

proceed cancel
Instant digital delivery 100% Money Guarantee Multiple payment options Customizable house plans Construction cost estimates
VisaMastercardAmerican Express DiscoverGoogle Pay PayPal
4 Bedroom House Plan - ID 24604
File Type
CAD + PDF PDF
Drawing Sets
Architectural Drawings Structural Drawings

Unchecking Architectural Drawings will remove the basic files

proceed cancel
Add To Wishlist
Description

With 3D images for both interiors and exteriors, this 4 bedrooms 2 story house plan is all that you need to see when planning to build a house for your large family. This is a two-story building mansion plan that contains four bedrooms a living room and a dining room. One may ask if the plan comes with the Range Rover? Well, not really but we sure hope you will one day get to own one. For now, we can assure you of a fully detailed plan for the perfect family home for a very affordable price.

Plan Details

Features Drawings List
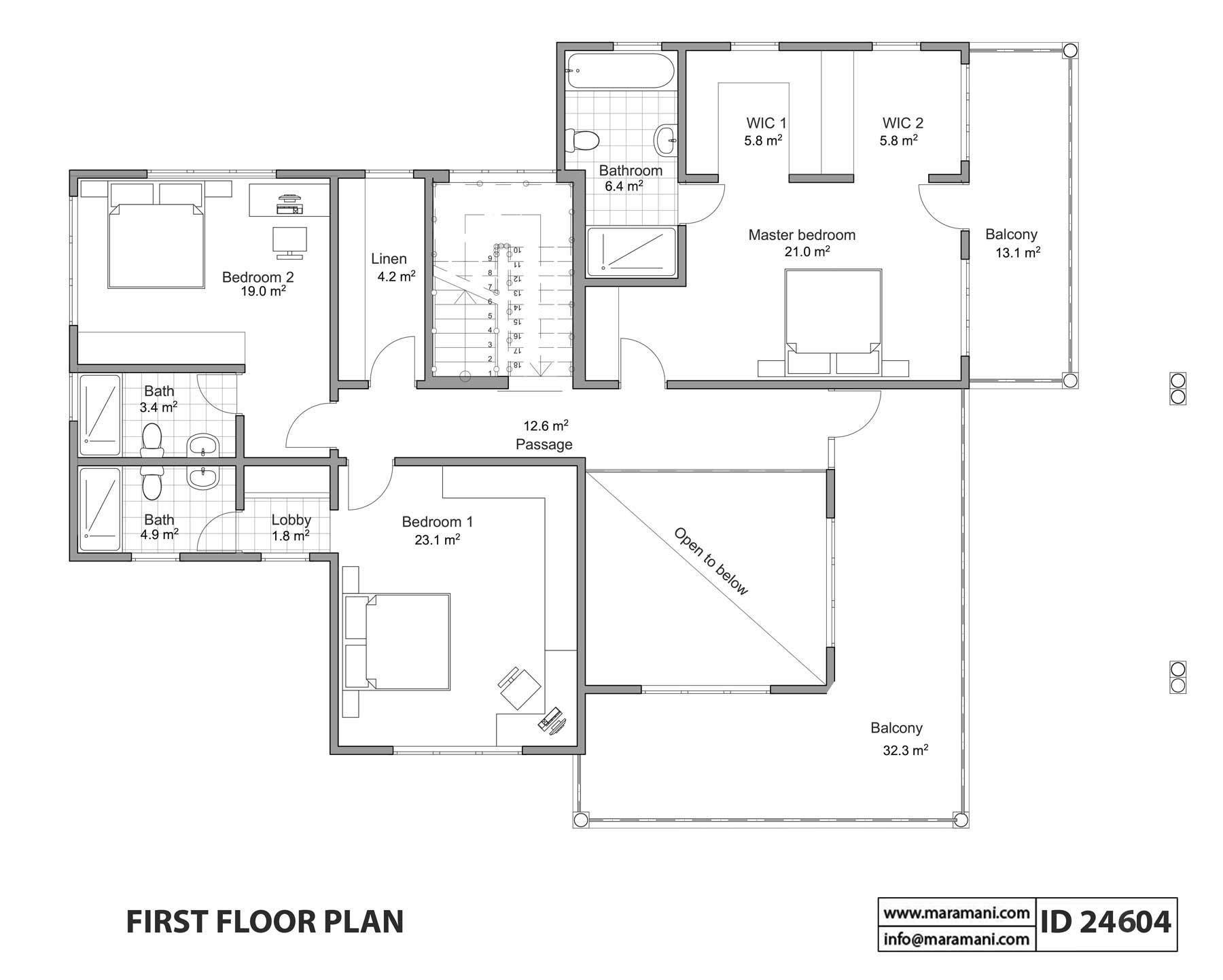
Stories: 2
Bedroom: 4
Self-contained rooms: 4
Toilets: 6
Kitchen: 1
Dining room: 1
Living room: 1
Balcony: 2
Verandah: 2
Office/Study: 1
Laundry: 1
Store/Linen: 2

Foundation Plan
Floor Plan
Roof Plan
Sections
Elevations
Schematic electrical layout
Details
Door and Window Schedule
Photo-realistic renders
Structural Drawings

*Drawings delivered in PDF and DWG Format

Very efficient, timely and money well spent.I loved the house plan and i received it immediately upon making payment. Thank you for your wonderful services. I recommend anyone buy from here without any reservations.

Ekong Richard

The company was responsive when I enquired about the services. The website is user friendly and easy to navigate.

Lutinala Nalomba

Comprehensive and fast response to my concern. Received the plans as detailed as promised, Bravo.

Henry Wanjala

Details were excellent, prices unbeatable Delivery was excellent.

Samuel Berko

The service is impeccable. Maramani response time is very fast. Immediately after I had made the payment I received my plans after 30 mins or less. Thanks Maramani for the excellent service.

Bose Mhizha

Drawing Sets & Rooms Included

Rooms included

  • ✔ Master Bedroom
  • ✔ Bedroom
  • ✔ WC
  • ✔ Kitchen
  • ✔ Dining Room
  • ✔ Living Room
  • ✔ Balcony
  • ✔ Veranda
  • ✔ Office/Library
  • ✔ Laundry
  • ✔ Indoor Store Room

Architectural drawings

  • ✔ Foundation Plan
  • ✔ Floor Plan
  • ✔ Roof Plan
  • ✔ Sections
  • ✔ Elevations
  • ✔ Door Schedule
  • ✔ Schematic Electrical Layout
  • ✔ Window Schedule
  • ✔ Details

Structural drawings

  • ✔ Foundation Details
  • ✔ Foundations Layout
  • ✔ Staircase Details
  • ✔ Roof Details
  • ✔ Beams Details
  • ✔ Slab Reinforcement
  • ✔ Column Details
477

Construction Cost Calculator

Basic
Standard
Luxury
Item Cost Estimates
1. Substructure
2. Superstructure
3. Roof
4. Doors
5. Windows
6. Finishes
7. Decorations
8. Plumbing Installations
9. Electrical Installations
TOTAL

FAQ

Our customer support is available Monday to Friday: 8am-8:30pm.Average answer time: 24h

Customer Reviews

Be the first to write a review
0%
(0)
0%
(0)
0%
(0)
0%
(0)
0%
(0)