4 Bedroom Villa Design - ID 24403

File Type
CAD + PDF PDF
Drawing Sets
Architectural Drawings

Unchecking Architectural Drawings will remove the basic files

proceed cancel
Instant digital delivery 100% Money Guarantee Multiple payment options Customizable house plans Construction cost estimates
VisaMastercardAmerican Express DiscoverGoogle Pay PayPal
4 Bedroom Villa Design - ID 24403
File Type
CAD + PDF PDF
Drawing Sets
Architectural Drawings

Unchecking Architectural Drawings will remove the basic files

proceed cancel
Add To Wishlist
Description

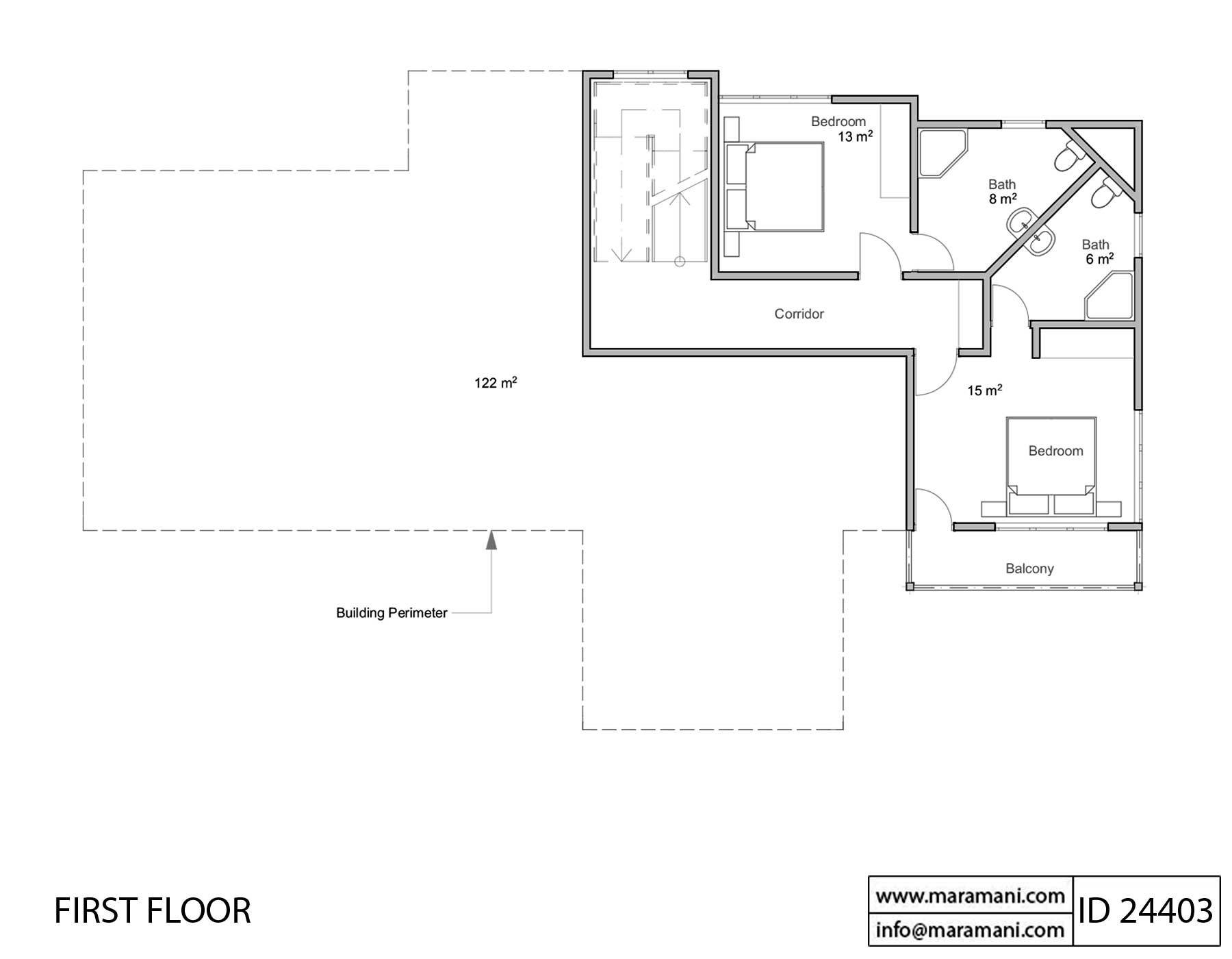
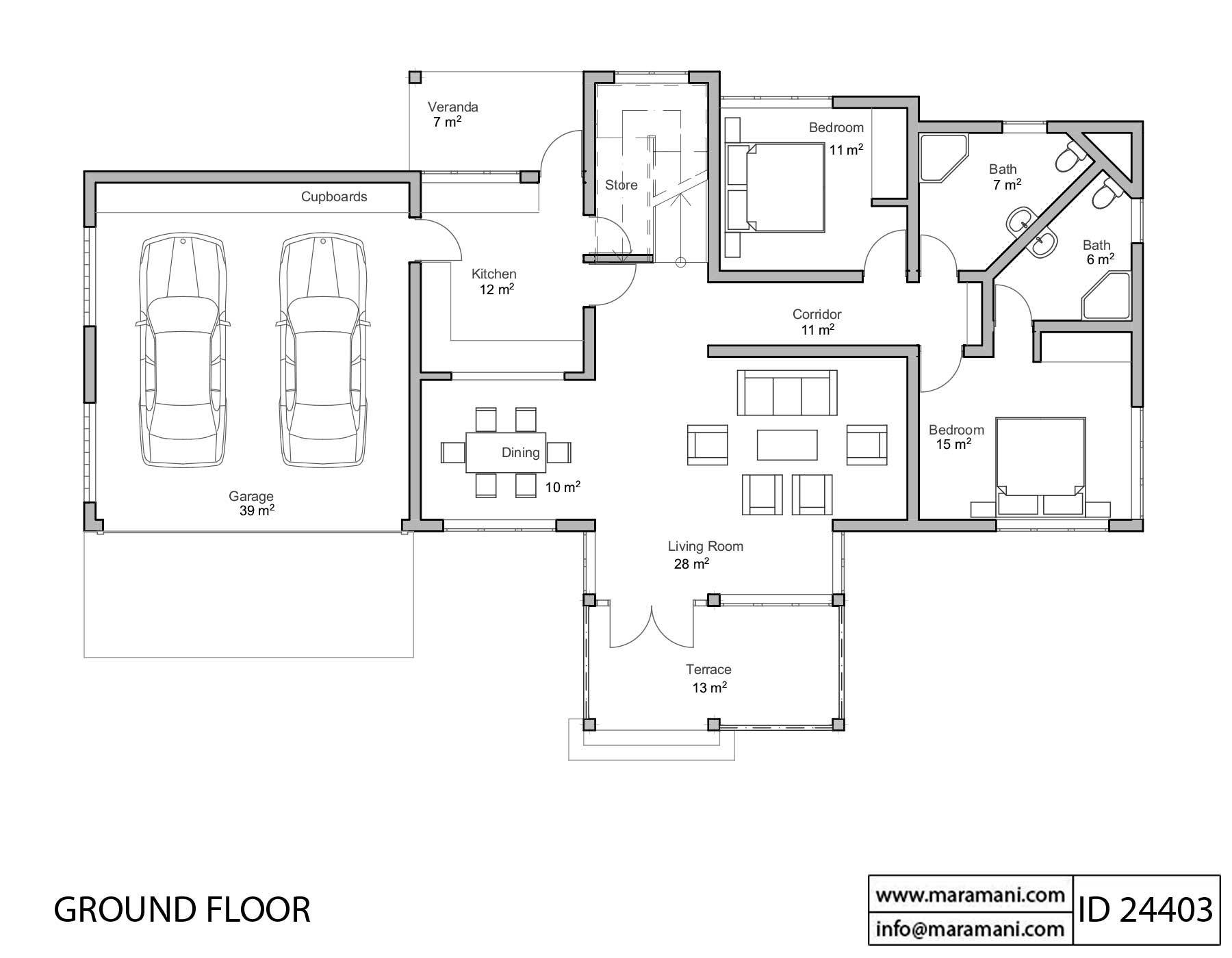
Four Bedrooms Villa Design with 2 cars garage, spacious back verandah and a stunning balcony for the master suite on the first floor. Direct access from the garage to the kitchen provides additional security and privacy when entering your home. The plan is designed to take up a small foot print thus keeping the construction costs down.

Plan Details

Features Drawings List

Stories: 2
Bedrooms: 4
Self-contained rooms: 3
Toilets: 4
Kitchen: 1
Dining room: 1
Living room: 1
Balcony: 1
Verandah: 2
Garage: 1 (2 cars)
Store: 2

Foundation plan
Floor plans
Roof plan
Elevations
Sections
Door and window schedules
Schematic electrical layout
*Drawings delivered in PDF and DWG Format

Very efficient, timely and money well spent.I loved the house plan and i received it immediately upon making payment. Thank you for your wonderful services. I recommend anyone buy from here without any reservations.

Ekong Richard

The company was responsive when I enquired about the services. The website is user friendly and easy to navigate.

Lutinala Nalomba

Comprehensive and fast response to my concern. Received the plans as detailed as promised, Bravo.

Henry Wanjala

Details were excellent, prices unbeatable Delivery was excellent.

Samuel Berko

The service is impeccable. Maramani response time is very fast. Immediately after I had made the payment I received my plans after 30 mins or less. Thanks Maramani for the excellent service.

Bose Mhizha

Drawing Sets & Rooms Included

Rooms included

  • ✔ Master Bedroom
  • ✔ Bedroom
  • ✔ WC
  • ✔ Kitchen
  • ✔ Dining Room
  • ✔ Living Room
  • ✔ Balcony
  • ✔ Veranda
  • ✔ Garage/Parking
  • ✔ Indoor Store Room

Architectural drawings

  • ✔ Foundation Plan
  • ✔ Floor Plan
  • ✔ Roof Plan
  • ✔ Sections
  • ✔ Elevations
  • ✔ Door Schedule
  • ✔ Schematic Electrical Layout
  • ✔ Window Schedule
271

Construction Cost Calculator

Basic
Standard
Luxury
Item Cost Estimates
1. Substructure
2. Superstructure
3. Roof
4. Doors
5. Windows
6. Finishes
7. Decorations
8. Plumbing Installations
9. Electrical Installations
TOTAL

FAQ

Our customer support is available Monday to Friday: 8am-8:30pm.Average answer time: 24h

Customer Reviews

Be the first to write a review
0%
(0)
0%
(0)
0%
(0)
0%
(0)
0%
(0)