5 Bedroom Plan - ID 25503

File Type
CAD + PDF PDF
Drawing Sets
Architectural Drawings Structural Drawings

Unchecking Architectural Drawings will remove the basic files

proceed cancel
Instant digital delivery 100% Money Guarantee Multiple payment options Customizable house plans Construction cost estimates
VisaMastercardAmerican Express DiscoverGoogle Pay PayPal
5 Bedroom Plan - ID 25503
File Type
CAD + PDF PDF
Drawing Sets
Architectural Drawings Structural Drawings

Unchecking Architectural Drawings will remove the basic files

proceed cancel
Add To Wishlist
Description

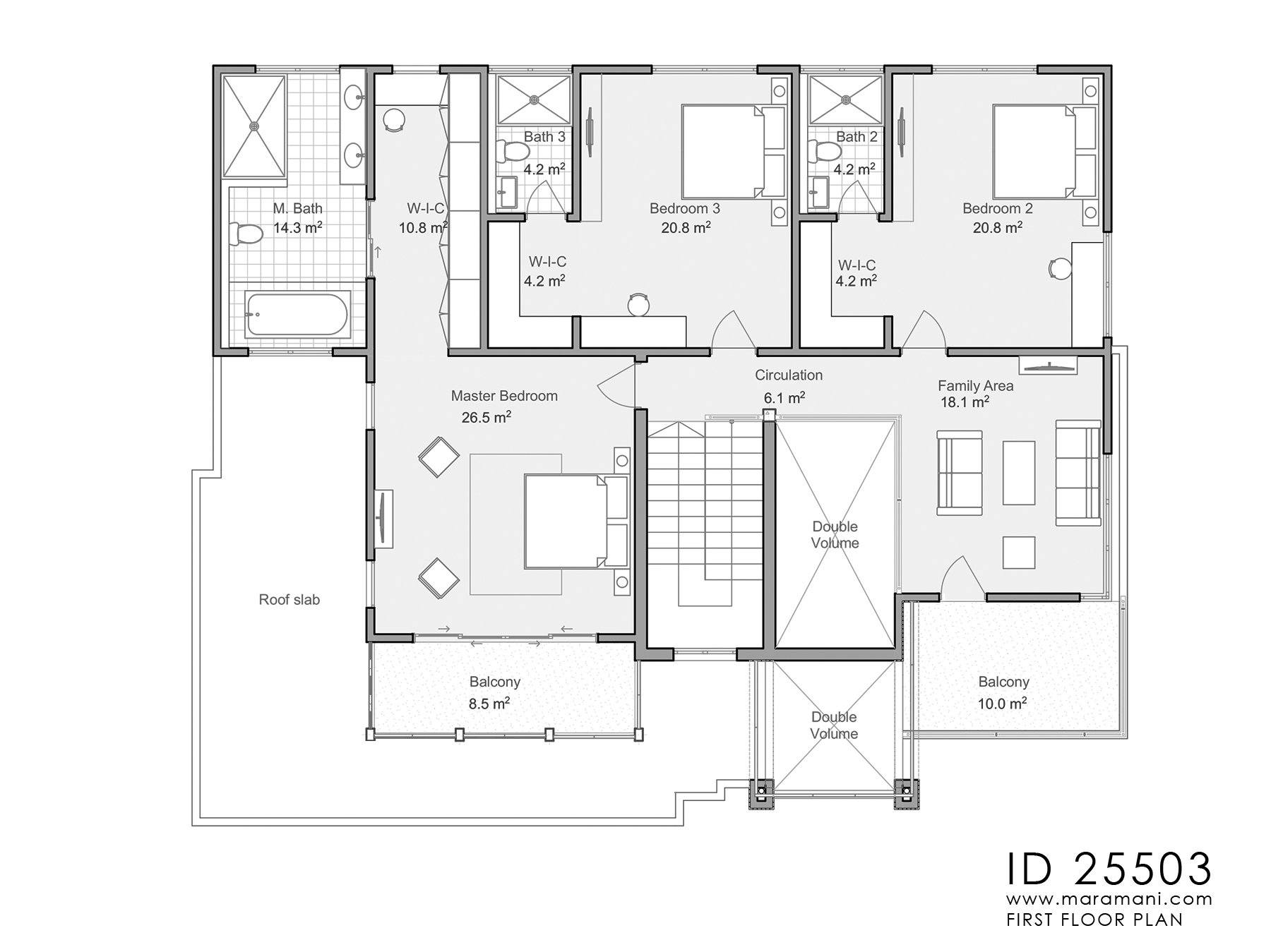
Four bedrooms + a maids room with a separate entrance make up this beautifully crafted contemporary house. A large open kitchen with a separately enclosed pantry (small kitchen) allows all types of food preparation whether in public or private. Likewise, an open living room and an attached semi-enclosed living area allow hosting of different activities without interference. All rooms on the first floor are en-suite with their own bathrooms and walk-in closets. . 5 bedroom plan with a contemporary outlook and spacious interiors to accommodate your growing family.

Plan Details

Features Drawings List

Stories: 2
Bedroom: 5
Self-contained rooms: 3
Toilets: 5
Kitchen: 1
Pantry: 1
Dining room: 1
Living room: 3
Laundry: 1
Store: 1
Porch: 2
Open Garage: 3 cars

Foundation Plan
Floor plan
Roof plan
Sections
Elevations
Schematic electrical layout
Door and window schedule
Furniture layout
Details
Structural Drawings

*Drawings delivered in PDF and DWG Format

Very efficient, timely and money well spent.I loved the house plan and i received it immediately upon making payment. Thank you for your wonderful services. I recommend anyone buy from here without any reservations.

Ekong Richard

The company was responsive when I enquired about the services. The website is user friendly and easy to navigate.

Lutinala Nalomba

Comprehensive and fast response to my concern. Received the plans as detailed as promised, Bravo.

Henry Wanjala

Details were excellent, prices unbeatable Delivery was excellent.

Samuel Berko

The service is impeccable. Maramani response time is very fast. Immediately after I had made the payment I received my plans after 30 mins or less. Thanks Maramani for the excellent service.

Bose Mhizha

Drawing Sets & Rooms Included

Rooms included

  • ✔ Master Bedroom
  • ✔ Bedroom
  • ✔ WC
  • ✔ Kitchen
  • ✔ Dining Room
  • ✔ Living Room
  • ✔ Pantry
  • ✔ Laundry
  • ✔ Indoor Store Room
  • ✔ Veranda
  • ✔ Garage/Parking

Architectural drawings

  • ✔ Foundation Plan
  • ✔ Floor Plan
  • ✔ Roof Plan
  • ✔ Sections
  • ✔ Elevations
  • ✔ Details
  • ✔ Door Schedule
  • ✔ Window Schedule
  • ✔ Furniture Layout Plans

Structural drawings

  • ✔ Foundation Details
  • ✔ Foundations Layout
  • ✔ Beams Details
  • ✔ Column Details
  • ✔ Roof Details
  • ✔ Slab Reinforcement
  • ✔ Staircase Details
469

Construction Cost Calculator

Basic
Standard
Luxury
Item Cost Estimates
1. Substructure
2. Superstructure
3. Roof
4. Doors
5. Windows
6. Finishes
7. Decorations
8. Plumbing Installations
9. Electrical Installations
TOTAL

FAQ

Our customer support is available Monday to Friday: 8am-8:30pm.Average answer time: 24h

Customer Reviews

Be the first to write a review
0%
(0)
0%
(0)
0%
(0)
0%
(0)
0%
(0)