6 Bedroom House Plan - ID 26601

File Type
CAD + PDF PDF
Drawing Sets
Architectural Drawings Structural Drawings

Unchecking Architectural Drawings will remove the basic files

proceed cancel
Instant digital delivery 100% Money Guarantee Multiple payment options Customizable house plans Construction cost estimates
VisaMastercardAmerican Express DiscoverGoogle Pay PayPal
6 Bedroom House Plan - ID 26601
File Type
CAD + PDF PDF
Drawing Sets
Architectural Drawings Structural Drawings

Unchecking Architectural Drawings will remove the basic files

proceed cancel
Add To Wishlist
Description

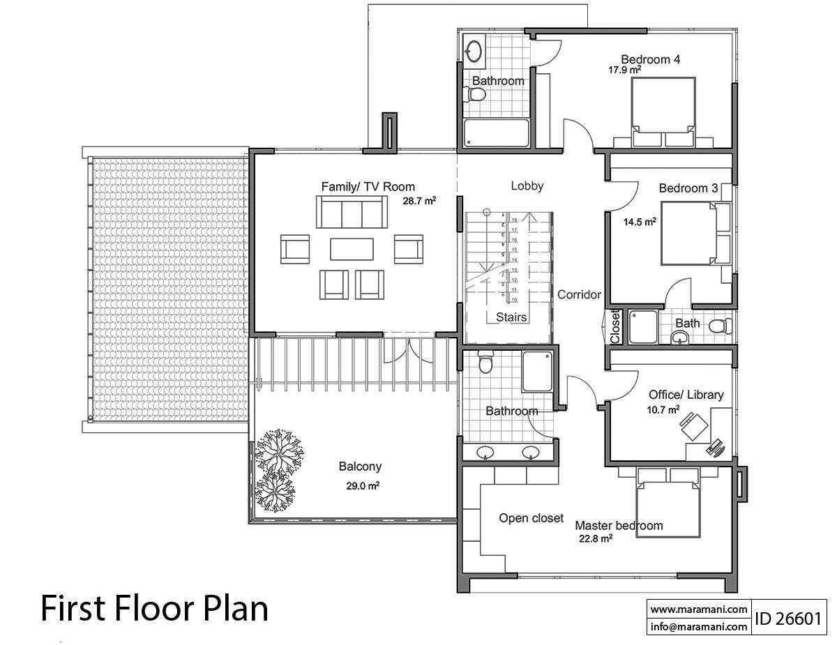
You’ll be blown away by this 6 bedrooms Modern luxury house plan that provides abundant areas to relax and has charming windows that stream in plenty of light. It has two verandas a laundry and an office. A large master bedroom with a panoramic window makes this plan truly special. A public verandah and balcony give you lots of space to host your guests or have family time out in the sun.

Plan Details

Features Drawings List

Stories: 2
Bedroom: 6
Self-contained rooms: 4
Toilets: 6
Kitchen: 1
Dining room: 1
Living room: 1
Balcony: 1
Verandah: 2
Office: 1
Laundry: 1
Store: 2

Foundation plan
Floor plans
Roof plan
Sections
Elevations
Schematic electrical layout
Floor finishes plans
Door and window schedules and lists
Perimeter wall
Septic tank and soakage pit details
Roof details
High resolution renders
Structural Drawings

*Drawings delivered in PDF and DWG Format

Very efficient, timely and money well spent.I loved the house plan and i received it immediately upon making payment. Thank you for your wonderful services. I recommend anyone buy from here without any reservations.

Ekong Richard

The company was responsive when I enquired about the services. The website is user friendly and easy to navigate.

Lutinala Nalomba

Comprehensive and fast response to my concern. Received the plans as detailed as promised, Bravo.

Henry Wanjala

Details were excellent, prices unbeatable Delivery was excellent.

Samuel Berko

The service is impeccable. Maramani response time is very fast. Immediately after I had made the payment I received my plans after 30 mins or less. Thanks Maramani for the excellent service.

Bose Mhizha

Drawing Sets & Rooms Included

Rooms included

  • ✔ Master Bedroom
  • ✔ Bedroom
  • ✔ WC
  • ✔ Kitchen
  • ✔ Dining Room
  • ✔ Living Room
  • ✔ Balcony
  • ✔ Veranda
  • ✔ Office/Library
  • ✔ Laundry
  • ✔ Indoor Store Room

Architectural drawings

  • ✔ Foundation Plan
  • ✔ Floor Plan
  • ✔ Roof Plan
  • ✔ Sections
  • ✔ Elevations
  • ✔ Door Schedule
  • ✔ Window Schedule
  • ✔ Floor Finishes
  • ✔ Schematic Electrical Layout
  • ✔ Perimeter Wall
  • ✔ Septic Tank & Soak Away Pit
  • ✔ Details

Structural drawings

  • ✔ Foundations Layout
  • ✔ Foundation Details
  • ✔ Staircase Details
  • ✔ Beams Details
  • ✔ Slab Reinforcement
  • ✔ Column Details
434

Construction Cost Calculator

Basic
Standard
Luxury
Item Cost Estimates
1. Substructure
2. Superstructure
3. Roof
4. Doors
5. Windows
6. Finishes
7. Decorations
8. Plumbing Installations
9. Electrical Installations
TOTAL

FAQ

Our customer support is available Monday to Friday: 8am-8:30pm.Average answer time: 24h

Customer Reviews

Based on 1 review
100%
(1)
0%
(0)
0%
(0)
0%
(0)
0%
(0)
G
George Austin
House Plan - ID 26601

I like the transparency provided by the site. The prices are more than reasonable. I hope to build soon and will be willing to provide updates.

Thank you so much for your feedback! We’re really glad to hear you found the site transparent and the prices reasonable. Can’t wait to hear how things go once you get started on your build – best of luck with everything!