Modern 5 Bedroom Mansion - ID 25706

File Type
CAD + PDF PDF
Drawing Sets
Architectural Drawings Structural Drawings Bills of Quantity (BOQ)

Unchecking Architectural Drawings will remove the basic files

proceed cancel
Instant digital delivery 100% Money Guarantee Multiple payment options Customizable house plans Construction cost estimates
VisaMastercardAmerican Express DiscoverGoogle Pay PayPal
Modern 5 Bedroom Mansion - ID 25706
File Type
CAD + PDF PDF
Drawing Sets
Architectural Drawings Structural Drawings Bills of Quantity (BOQ)

Unchecking Architectural Drawings will remove the basic files

proceed cancel
Add To Wishlist
Description

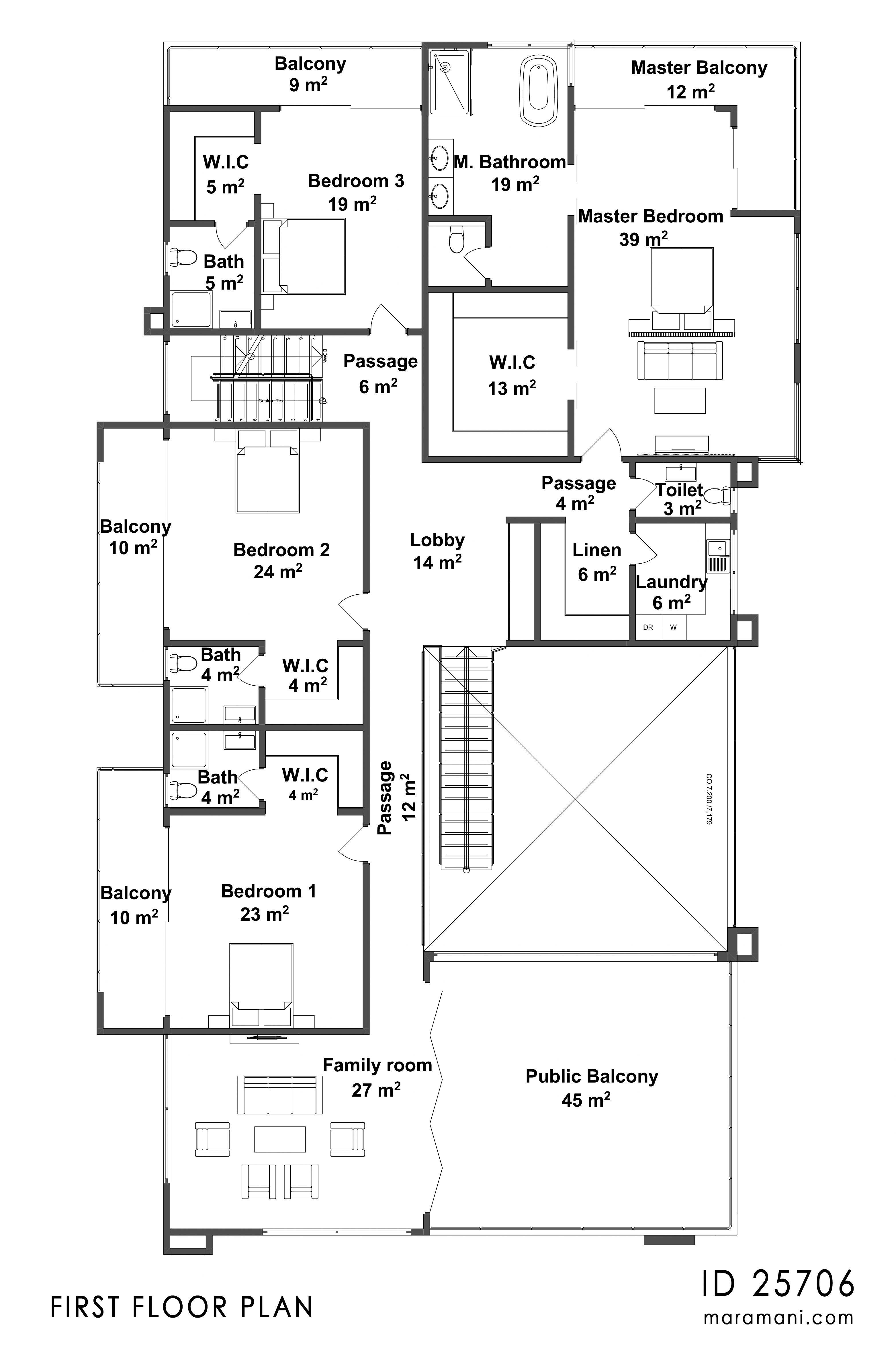
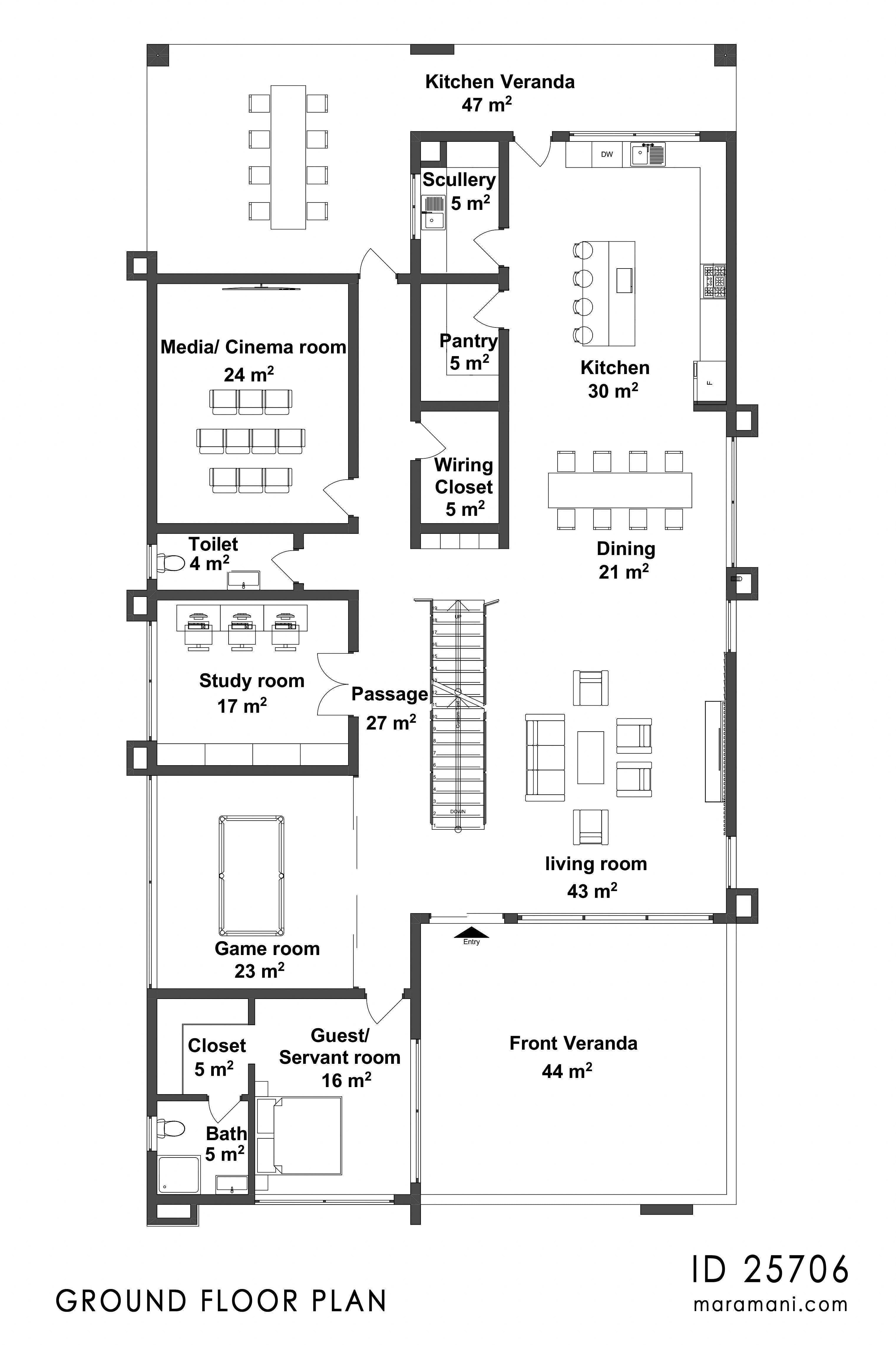
A stunning modern 5 bedroom mansion layout with an equally impressive and unique facade means that this marvelous home is a true rarity featuring total functionality. The spacious 788 square meter layout spans 2 stories and offers something for everyone. Perhaps the most important feature to appreciate is the fact that every bedroom has its own en-suite and walk-in closet. Highlighting the master suite with its stunning spa bath and a large walk-in wardrobe that is big enough for even the largest of fashion collections. This home is also great for entertaining too as shown on the main level. From the front veranda, there is a large double-story living room that opens toward the dining room and an amazing gourmet island kitchen, however, the Media/cinema room, study room, and Game room are the real stars of the show. Your kids and guests will love this show. The main level also provides a Guest/servant room, pantry, scullery, and a large kitchen veranda with a dining table. Finally, the first floor has a family room, public balcony, laundry, linen, and all other Bedrooms each with its balcony.

Plan Details

Features Drawings List

Stories: 2
Bedrooms: 5
En-suite rooms: 5
Toilets/ bath: 7
Kitchen: 1
Wiring closet: 1
Laundry: 1
Linen: 1
Pantry: 1
Scullery: 1
Living room: 1
Dining: 1
Media room: 1
Game room: 1
Study room: 1
Family room: 1
Balconies: 5
Veranda: 2

Foundation Plan
Floor Plan
Roof Plan
Elevations
Sections
Construction Details
3D Perspectives
Door and Window Schedules
Schematic Electrical layout
Schematic Water supply and Drainage Layout
Furniture layout and Floor finishes plan
Structural drawings
Bill of Quantities (editable excel format)
Schedule of Materials (editable excel format)

*Drawings delivered in PDF and DWG Format

Very efficient, timely and money well spent.I loved the house plan and i received it immediately upon making payment. Thank you for your wonderful services. I recommend anyone buy from here without any reservations.

Ekong Richard

The company was responsive when I enquired about the services. The website is user friendly and easy to navigate.

Lutinala Nalomba

Comprehensive and fast response to my concern. Received the plans as detailed as promised, Bravo.

Henry Wanjala

Details were excellent, prices unbeatable Delivery was excellent.

Samuel Berko

The service is impeccable. Maramani response time is very fast. Immediately after I had made the payment I received my plans after 30 mins or less. Thanks Maramani for the excellent service.

Bose Mhizha

Drawing Sets & Rooms Included

Rooms included

  • ✔ Master Bedroom
  • ✔ Bedroom
  • ✔ Bathroom
  • ✔ Kitchen
  • ✔ Mechanical Room
  • ✔ Dining Room
  • ✔ Living Room
  • ✔ Laundry
  • ✔ Linen Store
  • ✔ Pantry
  • ✔ Scullery
  • ✔ TV Room/Cinema/Theater
  • ✔ Game Room
  • ✔ Office/Library
  • ✔ Family Room
  • ✔ Balcony
  • ✔ Veranda

Architectural drawings

  • ✔ Foundation Plan
  • ✔ Floor Plan
  • ✔ Roof Plan
  • ✔ Sections
  • ✔ Elevations
  • ✔ Details
  • ✔ Door Schedule
  • ✔ Window Schedule
  • ✔ Floor Finishes
  • ✔ Furniture Layout Plans
  • ✔ Schematic Electrical Layout
  • ✔ Schematic Clean Water Layout
  • ✔ Schematic Waste Water Layout
  • ✔ 3D Views

Structural drawings

  • ✔ Foundations Layout
  • ✔ Staircase Details
  • ✔ Beams Details
  • ✔ Slab Panels
  • ✔ Structural Calculations
  • ✔ Column Details
  • ✔ Bar Bending Schedule

Bills of Quantity

  • ✔ Bills of Quantity (BOQ)
  • ✔ Schedule of Materials
788

Construction Cost Calculator

Basic
Standard
Luxury
Item Cost Estimates
1. Substructure
2. Superstructure
3. Roof
4. Doors
5. Windows
6. Finishes
7. Decorations
8. Plumbing Installations
9. Electrical Installations
TOTAL

FAQ

Our customer support is available Monday to Friday: 8am-8:30pm.Average answer time: 24h

Customer Reviews

Based on 2 reviews
100%
(2)
0%
(0)
0%
(0)
0%
(0)
0%
(0)
G
George Omolloh
Detailed plan. Super fast service!

Nice job and amazingly detailed plan. The purchase process was super easy and instant. Will definitely refer and come back for the next project.

Hello George,

Thank you for your wonderful review! We're thrilled you’re happy with the plan and our service. We look forward to working with you on your next project!

P
Pi Williams

Mmmm this house is ridiculously stunning..so gorgeous so elegant and generously spacious.

But where are the car garages????

Pat

Thank you, Pi Williams! We're glad you love the design. For car garages or any customizations, feel free to reach out—we're happy to assist.